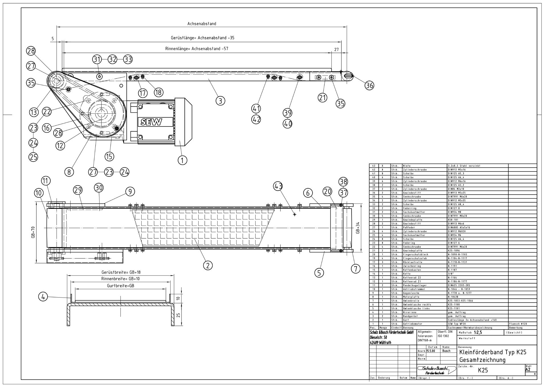
K-25(M)

Kleinförderband Typ K25 (M)
Kleinförderbänder sind die kleinste Ausführung unserer Gurtförderer.
Sie werden dann eingesetzt, wenn besonders kleine und leichte
Gegenstände transportiert werden sollen oder beengte
Einbauverhältnisse vorliegen.
Die Gesamtbelastung sollte im Normalfall 30 kg nicht überschreiten.
Die Lieferzeiten liegen zwischen 1 2 Wochen für Standardabmessungen oder 3 4 Wochen für Sonderausführungen.

Ausführung:

Standardgurtbreiten:
40, 80 100, 120, 200, 250, 300, 350, 400, 450, 500, 550, 600 mm

Bandlängen: 400 9.000 mm Sonderausführung sind aber auch für Gurtbreiten bis 1.300 mm und Gesamtlängen bis 15.000 mm möglich.

Fördergeschwindigkeit: bis 60 m/min. konstant, oder regelbar 1:10

Getriebemotor: Fabrikat SEW DS 230/400 V, 50 Hz, IP 54

Standardgurt: Polyestergurt mit PVC-Beschichtung

Bandgerüst: laserbearbeitetes Stahlblech t = 3 mm, lackiert in RAL-Farbe nach Wahl bei Typen K25, K25M,

Antriebstrommel: Ø 55 mm gummiert, ballig geschliffen, öl- und fettbeständig

Umlenkrolle: Ø 52 mm aus Aluminium bzw. Ø 27 mm aus Stahl ballig gedreht

Rücklaufrollen: aus Stahl verzinkt

Kettentrieb: Einfach-Rollenkette nach DIN 8187 3/8"

Beschlagteile: aus Stahl, pulverbeschichtet in RAL 9005 tiefschwarz

Kugellagerung: beidseitig abgedichtet und wartungsfrei

Befestigungselemente: aus Stahl verzinkt


Dazu bieten wir umfangreiches Zubehör wie Stützen, Seitenführungen etc. an.

KONTAKT

Schulz & Busch

Fördertechnik GmbH

Dieselstr.50

42489Wülfrath

Tel.: +49 (0) 2058 8974-0

info@schulz-busch.de

Impressum | Kontaktformular | Haftungsausschluss | Datenschutzerklärung

Diese Website benutzt Cookies, um Ihnen das beste Erlebnis zu ermöglichen. Weiterführende Informationen erhalten Sie in unserer Datenschutzerklärung.